咨询热线
13777594082

恭祝杭州瑞亚电气技术有限公司办公室装修设计开工大吉
来源: 浙江国富装饰 浏览人数: 1317次 更新时间: 2023-03-01
项目名称:杭州瑞亚电气技术有限公司办公室
项目地址:杭州余杭区启迪万华科技园4期34号
设计公司:浙江国富装饰设计工程有限公司
施工公司:浙江国富装饰设计工程有限公司
相关资质:设计乙级资质 施工贰级资质
公司介绍:
浙江国富装饰设计工程有限公司成立于2008年,注册资金5000万,拥有国家住建部颁发设计乙级资质、施工贰级资质、建筑安全生产许可证。专注中高端办公室、写字楼等办公空间,策划、设计、预算、施工、售后于一体的专业工装公司。
公司秉承“真诚、守信、创新、共赢”的企业经营理念,以客户的需求为己任。通过十几年的稳健发展,已服务1000+经典客户,积累了丰富的设计和施工经验,拥有高水平的设计、精湛的施工和完善的售后服务体系。
公司自成立以来,树立了良好的企业形象,凭借多方面优势,成为杭州消费者放心知名品牌单位,荣获“全国信用AAA企业”、“杭州市信用优秀企业”和“质量AAA级信用单位”等荣誉称号。
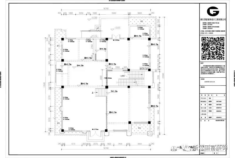
平面图




办公室设计效果图










31
2023-01
联系信息
手 机:13777594082(微信同号)微信公众号二维码

长按二维码识别关注
装修咨询微信二维码

长按二维码识别添加